Midtown Residence
https://old.imobilone.ro/index.php/proiecte/matei-voievod-residence#sigProId475be00be4
![]() |
![]() |
![]() |
![]() |
![]() |
![]() |
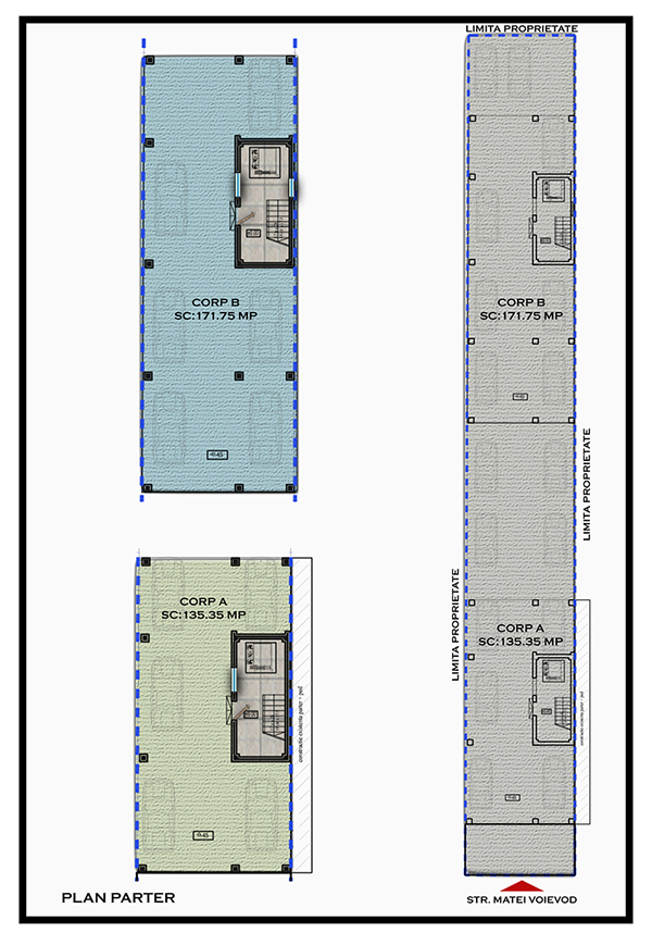
Imobilul P+4E compus din 2 corpuri in total 16 de locuinte: apartamente 2 camere si apartamente 3 camere:
• Apartament 3 camere incepand de la 101.000 euro tva 5% inclus.
• Apartament 2 camere incepand de la 62.200 euro tva 5% inclus.
Se accepta ca modalitate de plata atat cash cat si credite bancare Imobiliar.
Proiectul are ca termen de predare finalizare si predare la cheie in 1 iulie 2017.
| Corp A | |||||||
| Etaj | Numar | Tip | S utila (mp) | S Balcon (mp) | S util + Balcon (mp) | Disponibilitate | Pret (Euro) |
| Et 1 | 1 | 2 camere | 54,80 | 6,20 | 60,25 | vandut | 81.300 |
| Et 1 | 2 | 2 camere | 43,65 | 3,60 | 47,85 | vandut | 64.600 |
| Et 2 | 3 | 2 camere | 54,80 | 6,20 | 60,25 | vandut | 81.300 |
| Et 2 | 4 | 2 camere | 43,65 | 3,60 | 47,85 | vandut | 64.600 |
| Et 3 | 5 | 2 camere | 54,80 | 6,20 | 60,25 | vandut | 81.300 |
| Et 3 | 6 | 2 camere | 43,65 | 3,60 | 47,85 | vandut | 64.600 |
| Et 4 | 7 | 2 camere | 54,80 | 6,20 | 60,25 | vandut | 81.300 |
| Et 4 | 8 | 2 camere | 43,65 | 3,60 | 47,85 | vandut | 64.600 |
| Corp B | |||||||
| Etaj | Numar | Tip | S utila (mp) | S Balcon (mp) | S util + Balcon (mp) | Disponibilitate | Pret (Euro) |
| P | 1A | 3 camere + terasa | 65.12 | 46,14 | 9.40 | vandut | 105.000 |
| Et 1 | 1 | 3 camere | 71,03 | 6,76 | 77,79 | vandut | 105.000 |
| Et 1 | 2 | 2 camere | 49,65 | 4,50 | 54,15 | vandut | 73.100 |
| Et 2 | 3 | 3 camere | 71,03 | 6,76 | 77,79 | vandut | 105.000 |
| Et 2 | 4 | 2 camere | 49,65 | 4,50 | 54,15 | vandut | 73.100 |
| Et 3 | 5 | 3 camere | 71,03 | 6,76 | 77,79 | vandut | 105.000 |
| Et 3 | 6 | 2 camere | 49,65 | 4,50 | 54,15 | vandut | 73.100 |
| Et 4 | 7 | 3 camere | 71,03 | 6,76 | 77,79 | vandut | 105.000 |
| Et 4 | 8 | 2 camere | 49,65 | 4,50 | 54,15 | vandut | 73.100 |
Buy now
You can now buy this awesome Joomla Theme directly on Themeforest for a really low price for this awesome and stunning Joomla product!
Nulla vitae elit libero, a pharetra augue. Lorem ipsum dolor sit amet, consectetur adipiscing elit. Etiam porta sem malesuada magna mollis euismod. Morbi leo risus, porta ac consectetur ac, vestibulum at eros. Nulla vitae elit libero, a pharetra augue.







